MEIN ERGEBNIS ANPASSEN

Moderne Neubauwohnung Nähe Neustiftgasse - 5. OG - Objektnr. 5570928

  • Wohnzimmer mit offener Küche
  • top ausgestattete Küche
  • großes Wohnzimmer
  • Wohnzimmer, Blick zum Vorraum
  • Schlafzimmer
  • schickes Badezimmer
  • WC mit Waschbecken r
  • Abstellraum
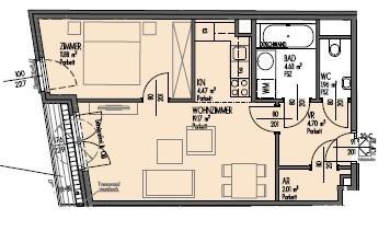
  • Grundriss Top 33
  • Außenansicht Kaiserstraße
  • Lageplan Öffis
  • Logo
  • IMMY Preisträger
1070
Ort
€ 1.235,00
Gesamtkosten
50,00 m²
Fläche
2.0
Zimmer

ECKDATEN
FindMyHome.at // Externe Immobilien-ID5570928 // 3610/7274
ImmobilienartWohnung - Miete
Anschrift1070 Wien
Baujahr2017
NäheBurggasse, Neustiftgasse
HeizungFußbodenheizung
Liftja
KellerJa
Beziehbar ab01.01.2026
Mietdauer5.0
Fläche50,00 m²
Loggia1 (2,24 m²)
Zimmer2.0
Bad1
WC1
Kaution:€ 3.705,00
sonstige Kosten (inkl. MwSt):€ 130,53
Mehrwertsteuer:€ 1.234,00
Monatliche Gesamtkosten:€ 1.235,00




BESCHREIBUNG

Moderne Neubauwohnung Nähe Neustiftgasse - 5. OG

Zur Vermietung gelangt diese äußerst schicke, 2017 fertiggestellte Neubauwohnung mit 48,82m² Wohfläche plus Loggia im 7. Bezirk in der Kaiserstraße.
Sie befindet sich im 5. Obergeschoß. Ein eigenes Kellerabteil steht Ihnen ebenso, wie der große, moderne Aufzug zur Verfügung. Die hochwertige Ausstattung und die tolle Einbauküche mit MIELE-Markengeräten sind nur zwei weitere Highlights von vielen.

Die Infrastruktur kann als perfekt beschrieben werden. Geschäfte für den täglichen Bedarf (Billa, dm, Apotheke,...) befinden sich in unmittelbarer Nähe. Die U6 ist ebenfalls fußläufig in nur 5min erreichbar.

RAUMAUFTEILUNG IN STICHWORTEN
? Vorraum
? Wohnzimmer mit Essbereich
? offene Küche
? Schlafzimmer
? Bad mit Badewanne (inkl. Duschmöglichkeit), Waschbecken und WM-Anschluss
? separates WC mit Waschbecken
? Abstellraum
? kl. Loggia

HIGHLIGHTS AUF EINEN BLICK
? Traumlage
? Designerküche mit MIELE-Markengeräten
? Fußbodenheizung
? schöner Echtholz-Parkettboden
? hochwertige Markenarmaturen und Kacheln in Bad und WC
? Loggia mit modernen WPC-Dielen
? Kellerabteil
? Waschküche
? Geschäfte für täglichen Bedarf vor der Haustür
? U6 Nähe

SEHR GUTE ÖFFENTLICHE VERKEHRSANBINDUNG
? Straßenbahnlinien 5, 6 und 49
? Autobuslinie 48A
? U6 in 5 Gehminuten

Erstzahlung
? € 108,-- Abwicklungshonorar Hausverwaltung (einmalig)
? 3 BMM Kaution
? erste Monatsmiete

Weitere monatliche Kosten
? Wasser, Heizung und Strom - werden direkt nach Verbrauch abgerechnet

VERTRAGSBEDINGUNGEN
? Befristung: 5 Jahre (Verlängerung möglich - kein Eigenbedarf)
? Kündigungsverzicht: 12 Monate
? Kündigungsfrist: 3 Monate
? benötigtes Mindestnettoeinkommen (Haushalt): doppelte MonatsmieteAngaben gemäß gesetzlichem Erfordernis:
Miete €1004,06 zzgl 10% USt.Betriebskosten €118,66 zzgl 10% USt.Umsatzsteuer €112,28------------------------------------------------------------------Gesamtbetrag €1235------------------------------------------------------------------Heizwärmebedarf:28.91 kWh/(m²a)Klasse Heizwärmebedarf:BFaktor Gesamtenergieeffizienz:0.76Klasse Faktor Gesamtenergieeffizienz:ARollstuhlgerecht: JA


Alle Details anzeigen

KONTAKT






 

Lasse dich kostenlos vom Anbieter dieser Immobilie zurückrufen.







 


 
Hubner Immobilien GmbH
Robert Fried
Telefonnummer anzeigen Telefon Allgemein: +4366488296010
 
Bitte dem Makler die FindMyHome.at - ID bekanntgeben: 5570928

Bewertungen dieses Anbieters
Qualitätsmakler
Qualitätsmakler:
2014, 2015, 2016, 2018, 2019, 2020, 2021 , 2025,
Netiquette
Freundlichkeit
84 %

BEWERTUNGEN DIESES ANBIETERS

 
Qualit�tsmakler
Qualitätsmakler
2014, 2015, 2016, 2018, 2019, 2020, 2021 2025
Weiterempfehlung
WIRD GERNE

Freundlichkeit
BESONDERS
FREUNDLICH
Netiquette
FINDMYHOME
NETIQUETTE
Auch du kannst bewerten! 7 Tage nach deiner Anfrage erhältst du dafür von uns ein Bewertungsmail.
Alle Infos zu unseren Auszeichnungen und dem FINDMYHOME.AT Qualitätsprogramm findest du hier: Übersicht anzeigen


Du willst wissen, wie viel dein Umzug kosten wird?

Mach gleich den kostenlosen Preisvergleich und schau, welche seriösen Anbieter in deiner Region günstig deinen Umzug organisieren


ZUM UMZUGS-VERGLEICH
-->

MYHOME BLOG
SuchAgentin auf FindMyHome.at
Unterschiedlichen Rechtsthemen, köstliche Rezepte, neueste Design-Highlights, sowie aktuelle Technik-Tools für Ihr Eigenheim.


FINDMYHOME.AT SUCHAGENTIN
SuchAgentin auf FindMyHome.at
Hallo, soll ich dir ähnliche Immobilien kostenfrei per E-Mail schicken?


ÄHNLICHE IMMOBILIEN
Aehnliche Immobilie - Vorschaubild 1

Neuwertig & tolle Lage!! Super-moderne 2-Zimmer Wohnung... - Objektnr. 5569273

43,13 m² - 2.0 Zimmer
1099 €
PLZ: 1070

Mehr anzeigen

Aehnliche Immobilie - Vorschaubild 2

AB FEBRUAR: Moderne 2-Zimmer Wohnung mit hochwertiger Aussta... - Objektnr. 5571996

50,00 m² - 2.0 Zimmer
1195 €
PLZ: 1070

Mehr anzeigen

Aehnliche Immobilie - Vorschaubild 3

Hofseitige, ruhige Neubauwohnung mit schönem Blick! 6. OG!!!... - Objektnr. 5569271

50,00 m² - 2.0 Zimmer
1215.35 €
PLZ: 1070

Mehr anzeigen

Durch die Nutzung unserer Seite erklären Sie sich mit der Verwendung von Cookies zur Verbesserung Ihres Online-Erlebnisses einverstanden. Detaillierte Informationen zu diesem und weiteren Themen erhalten Sie in unserer Datenschutzerklärung.