MEIN ERGEBNIS ANPASSEN

Hofseitige 3-Zimmer-Wohnung mit Balkon nahe VETMED! - Objektnr. 5563949


ökologisch beheizt
1220
Ort
76,83 m²
Fläche
3.0
Zimmer

ECKDATEN
FindMyHome.at // Externe Immobilien-ID5563949 // 2989
ImmobilienartWohnung - Eigentum
Anschrift1220 Wien
Baujahr1999
Befeuerung
Fernwärme
Stock2
Fläche76,83 m²
Zimmer3.0
Bad1
WC1
 Abstellraum
Kaufpreis:€ 398.000,00
Ratenzahlung:Finanzierungsmöglichkeiten für diese Immobilie anzeigen
Provision: 3% des Kaufpreises zzgl. 20% USt.







BESCHREIBUNG

Hofseitige 3-Zimmer-Wohnung mit Balkon nahe VETMED!

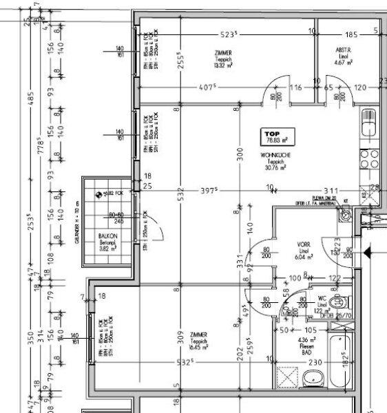
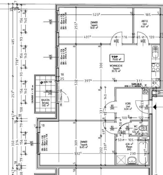
Zum Verkauf gelangt hier eine gut geschnittene 3 Zimmer - Wohnung mit 77 m2 Wohnfläche plus hofseitiger Balkon mit 4 m2!

Die Wohnung ist sehr gut und ruhig (hofseitig) gelegen und gut aufgeteilt. Es erwartet Sie eine komplett ausgestattete Küche mit allen Geräten, große Wohnküche, zwei Schlafzimmer, Badezimmer mit Wanne, Spiegelschrank, Waschmaschinenanschluss, separate Toilette, Abstellraum, Balkon. Die Küche ist mit Geräten ausgestattet: Backrohr, Ceranfeld, Dunstabzugshaube, Geschirrspüler. Nebenan befindet sich ein praktischer großer Abstellraum. Die Zimmer sind mit Laminat verlegt. Der Zugang zum hofseitig gelegenen Balkon erfolgt über das Wohnzimmer. Die Freifläche lädt zum Entspannen und Verweilen ein. Die Balkonterrasse ist mit schönem Terrassenbelag verlegt worden. Der Vorraum bietet Platz für eine Garderobe an. Das Badezimmer und WC sind sauber verfliest.  Kabel, Satelit- und Internetanschlüsse vorhanden. Zwei separate Schlafzimmer, ein separat angelegtes WC, so wie ein Badezimmer mit Badewanne und einem Waschmaschinenanschluss runden dieses Angebot ab.

Ein Kellerabteil ist der Wohnung als Zubehör zugeordnet. Zusätzlich können noch zwei Garagenstellplätze erworben werden bei Bedarf.

 

Ausstattung:

Laminat, Fliesen, Gegensprechanlage, Fenster mit Zwiefachverglasung, Innenjalousien, Lampen, Möbel (Bettgestell mit Lattenrost, Sitzgelegenheit, Stühle, Schrank und Komode) können bleiben oder auch auf Wunsch entfernt werden.

 

Hausanlage:

Ein Lift, Keller, Fahrrad- und Kinderwagenraum, sowie ein riesengroßer Hobbyraum / Kinderspielraum können mitbenützt werden.

Zur allgemeinen Benützung steht sowohl ein Indoor-, als auch ein Outdoor-Sportplatz zur Verfügung.

 

 

Lage

Die gute Lage dieses Objekts gewährleistete eine gute Infrastruktur und Verkehrsanbindung. Geschäfte des täglichen Bedarfs finden Sie in unmittelbarer Umgebung. Die nahe gelegene Alte Donau bietet Erholung und Freizeitmöglichkeiten. Viele Einkaufsmöglichkeiten im nahegelegenen Donauzentrum mit hunderten von Geschäften und Gastrobetrieben. Zum Kirchblütenpark, Erste Bank Arena, Attemsgasse, Donaufelderstraße, Vienna International School, Japanische Schule, Donauzentrum, Donauplex, Segelschule, Sportcenter, Donaucity, Gänsehäufel, Strandbad,  Alte Donau etc. sind es nur wenige Gehminuten und es befindet sich alles in der Nähe. Sehr gute Einkaufsmöglichkeiten und gastronomische Versorgung in direkter Wohnumgebung. Die VETMED (Veterinärmedizinische Universität Wien) ist auch zu Fuß sehr schnell zu erreichen.

 

Öffentliche Verkehrsanbindung:

U-Bahnlinie U1 "Kagran" (wenige Gehminuten) / Straßenbahnlinien 25, 26 / Buslinien 27A

 

Anreise mit den öffentlichen Verkehrsmitteln:

ab Westbahnhof: U6 in Richtung Floridsdorf bis Floridsdorf, weiter mit der Straßenbahnlinie 26 in Richtung Kagran bis Josef-Baumann-Gasse/Veterinärmedizinische Universität oder weiter mit der Straßenbahnlinie 25 in Richtung Aspern, Oberdorfstraße bis Tokiostraße.

ab Wien Hauptbahnhof: U1 in Richtung Leopoldau bis Kagraner Platz,weiter mit der Straßenbahnlinie 26 in Richtung Strebersdorf bis Veterinärmedizinische Universität / Tokiostraße, oder U1 in Richtung Leopoldau bis Kagran, weiter mit der Buslinie 27A in Richtung Hermann-Gebauer-Straße bis Veterinärmedizinische Universität oder
weiter mit der Straßenbahnlinie 25 in Richtung Floridsdorf bis Tokiostraße.

mit Schnellbahnen: S1 (Richtung Gänserndorf), S2 (Richtung Mistelbach), S3 (Richtung Hollabrunn), S15 (Richtung Floridsdorf) bis Floridsdorf, weiter mit der Straßenbahnlinie 26 in Richtung Kagran bis Josef-Baumann-Gasse/Veterinärmedizinische Universität oder
weiter mit der Straßenbahnlinie 25 in Richtung Aspern, Oberdorfstraße bis Tokiostraße.

Anreise vom Flughafen Schwechat: ein Bus (Vienna Airport Lines, Postbus) fährt vom Flughafen Wien Schwechat direkt nach Wien Donauzentrum (über Vienna International Center VIC)/U1-Station Kagran (Fahrzeit ca. 40 Minuten). Dann weiter mit der Buslinie 27A in Richtung Hermann-Gebauer-Straße bis Veterinärmedizinische Universität / Tokiostraße.

 

Konditionen:

Kaufpreis: ab € 398.000,--

Grunderwerbssteuer: 3,5 % vom KP (Kaufpreis);

Grundbucheintragung: 1,1% vom KP (Möglichkeit auf Befreiung wenn Erstimmobilie und zum dringenden Wohnbedürfnis gekauft wird);

Kaufvertragserrichtungskosten + Notar: Treuhandschaft und Beglaubigungen: i.d.R.:   % vom KP + 20% MwSt.;

Maklerhonorar: 3 % vom KP + 20 % MwSt.

ev. Pfandrechtseintragungskosten: 1,2% vom KP (Möglichkeit auf Befreiung wenn Erstimmobilie und zum dringenden Wohnbedürfnis gekauft wird);

 

 

Dienstleistung für Anleger:

Sie möchten nach Erwerb der Immobilie mit der Vermietung und eventuellen Fragen während des Mietverhältnisses nicht beschäftigt sein

Wir stehen Ihnen mit einem Dienstleistungskonzept für Anleger zur Verfügung. Gerne übermitteln wir Ihnen bei Bedarf die Unterlagen hierfür.

 

 

Finanzierung:

Sie suchen nach einer passenden Finanzierung für dieses Objekt

Um Ihnen Ihre wertvolle Zeit und Ihr Geld zu sparen, stehen wir Ihnen auch hier tatkräftig zur Seite!

Gerne stehen wir Ihnen für ein unverbindliches und kostenloses Erstberatungsgespräch zur Verfügung.

Wir beraten Sie verlässlich und professionell! Sparen Sie Ihre kostbare Zeit mit unzähligen Bankterminen.

 

 

Kontakt:

Bitte beachten Sie, dass wir aufgrund der Nachweispflicht gegenüber dem Eigentümer nur Anfragen mit vollständiger Angabe der Anschrift bearbeiten können.

Wir senden Ihnen gerne weitere und detaillierte Beschreibungen, sowie Besichtigungstermine zu, sobald wir Ihre Anfrage erhalten haben.

Wir bitten Sie daher um eine Email Anfrage an:

Noch nichts gefunden Wir informieren Sie über geeignete Immobilienangebote noch vor allen anderen.
Legen Sie jetzt Ihren individuellen Suchagenten unter folgendem Link an. Wir schicken Ihnen passende Immobilien exklusiv vorab zu.
Suchagent anlegen - https://pr-immobilien-real-estate.service.immo/registrieren/de

Wir weisen darauf hin, dass zwischen dem Vermittler und dem zu vermittelnden Dritten ein familiäres oder wirtschaftliches Naheverhältnis besteht.

Der Vermittler ist als Doppelmakler tätig.


Infrastruktur / Entfernungen

Gesundheit
Arzt <500m
Apotheke <500m
Klinik <2.500m
Krankenhaus <3.000m

Kinder & Schulen
Schule <500m
Kindergarten <500m
Universität <1.000m
Höhere Schule <1.000m

Nahversorgung
Supermarkt <500m
Bäckerei <1.000m
Einkaufszentrum <1.000m

Sonstige
Geldautomat <1.000m
Bank <1.000m
Post <1.500m
Polizei <1.000m

Verkehr
Bus <500m
U-Bahn <1.000m
Straßenbahn <500m
Bahnhof <1.000m
Autobahnanschluss <2.500m

Angaben Entfernung Luftlinie / Quelle: OpenStreetMap

Objekt ist für eine Wohngemeinschaft geeignet
Gartennutzung: JA
Kabel/SAT/TV: JA
Rollstuhlgerecht: JA
Barrierefrei: JA
Provision: 3% des Kaufpreises zzgl. 20% USt.


Alle Details anzeigen

KONTAKT






 

Lasse dich kostenlos vom Anbieter dieser Immobilie zurückrufen.







 


 
PR-IMMOBILIEN / REAL ESTATE
Radisa Paunovic
Telefonnummer anzeigen Telefon Allgemein: +436644041547
Handy Bearbeiter: +436644041547
 
Bitte dem Makler die FindMyHome.at - ID bekanntgeben: 5563949

Bewertungen dieses Anbieters
Netiquette
Freundlichkeit
80 %

BEWERTUNGEN DIESES ANBIETERS

 
Antwortzeit
ø 48h ANTWORT
Weiterempfehlung
WIRD GERNE

Freundlichkeit
BESONDERS
FREUNDLICH
Netiquette
FINDMYHOME
NETIQUETTE
Auch du kannst bewerten! 7 Tage nach deiner Anfrage erhältst du dafür von uns ein Bewertungsmail.
Alle Infos zu unseren Auszeichnungen und dem FINDMYHOME.AT Qualitätsprogramm findest du hier: Übersicht anzeigen

FINANZIERUNG
?>

Du willst wissen, wie viel dein Umzug kosten wird?

Mach gleich den kostenlosen Preisvergleich und schau, welche seriösen Anbieter in deiner Region günstig deinen Umzug organisieren


ZUM UMZUGS-VERGLEICH
-->

MYHOME BLOG
SuchAgentin auf FindMyHome.at
Unterschiedlichen Rechtsthemen, köstliche Rezepte, neueste Design-Highlights, sowie aktuelle Technik-Tools für Ihr Eigenheim.


FINDMYHOME.AT SUCHAGENTIN
SuchAgentin auf FindMyHome.at
Hallo, soll ich dir ähnliche Immobilien kostenfrei per E-Mail schicken?


ÄHNLICHE IMMOBILIEN
Aehnliche Immobilie - Vorschaubild 1

Moderne Vorsorgewohnung nahe U1 Kagran - Ideal für Investore... - Objektnr. 5376325

65,56 m² - 3.0 Zimmer
359000 €
PLZ: 1220

Mehr anzeigen

Aehnliche Immobilie - Vorschaubild 2

Ihr Traumzuhause in Wien: Am Bienefeld - Modern, Hochwertig,... - Objektnr. 5570228

66,06 m² - 3.0 Zimmer
439000 €
PLZ: 1220

Mehr anzeigen

Aehnliche Immobilie - Vorschaubild 3

Eigentumswohnung | Stadt. Land. Fluss. | 3 - Zimmer Wohntrau... - Objektnr. 5307433

62,84 m² - 3 Zimmer
462600 €
PLZ: 1220

Mehr anzeigen

Durch die Nutzung unserer Seite erklären Sie sich mit der Verwendung von Cookies zur Verbesserung Ihres Online-Erlebnisses einverstanden. Detaillierte Informationen zu diesem und weiteren Themen erhalten Sie in unserer Datenschutzerklärung.