MEIN ERGEBNIS ANPASSEN

Erstbezug! 3-Zimmer Wohnung mit Loggia und Balkon, Nähe Oberen Mühlwasser - Objektnr. 5552422

1220
Ort
60,33 m²
Fläche
3.0
Zimmer

ECKDATEN
FindMyHome.at // Externe Immobilien-ID5552422 // 4195
ImmobilienartWohnung - Eigentum
Anschrift1220 Wien
Baujahr2024
Stock1
Fläche60,33 m²
Zimmer3.0
Bad1
WC2
Kaufpreis:€ 379.000,00
Ratenzahlung:Finanzierungsmöglichkeiten für diese Immobilie anzeigen
Provision: 3% des Kaufpreises zzgl. 20% USt.







BESCHREIBUNG

Erstbezug! 3-Zimmer Wohnung mit Loggia und Balkon, Nähe Oberen Mühlwasser

Im Falle der Notwendigkeit einer Fremdfinanzierung Ihrer Wunschimmobilie ermittelt unser Wohnbau-Finanzierungsexperte gerne die optimale Finanzierungslösung und findet das passende Zins- und Konditionsangebot für Sie. Er vergleicht die aktuellen Angebote aller relevanten Banken und Bausparkassen. Der Angebotsvergleich kann aus einem Portfolio von über 120 Banken erfolgen. Das Erstgespräch ist für Sie kostenfrei und unverbindlich, gerne auch bei Ihnen vor Ort. So sparen Sie Ihre wertvolle Zeit und erhalten eine professionelle und unabhängige Finanzierungslösung vom Spezialisten. Sprechen Sie uns wegen eines Termins gerne an!

 

Zum Verkauf gelangt eine 3-Zimmer Wohnung mit Loggia und Balkon im 22. Wiener Gemeindebezirk in der Nähe des Oberen Mühlwassers.

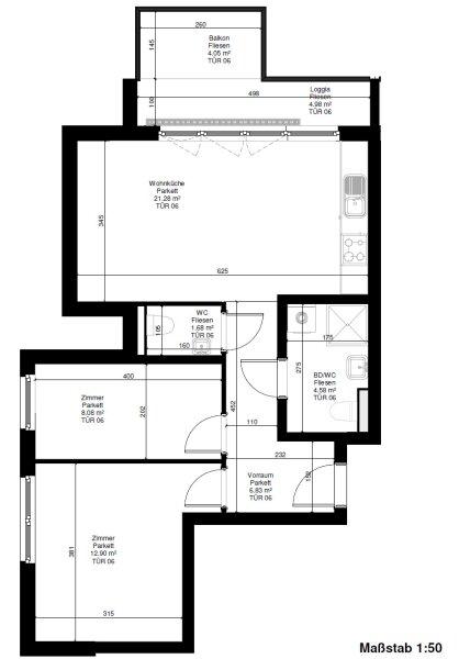
Die Wohnung befindet sich im ersten Stock, der bequem mit dem Aufzug erreichbar ist, und erstreckt sich über eine großzügige Wohnfläche von etwa 60 m². Sie gliedert sich in eine Wohnküche, zwei Zimmer, ein Bad mit WC und ein separates Gäste-WC. Zusätzlich verfügt die Wohnung über eine etwa 5 m² große Loggia und einen ca. 4 m² großen Balkon. Die Hauptbereiche der Wohnung sind mit hellem Parkettboden ausgestattet, während die Nassräume moderne Fliesen aufweisen. Die Beheizung erfolgt mittels einer Luftwärmepumpe. Fußbodenheizung, dreifach verglaste Kunststofffenster und Terrassentüren mit außenliegendem Sonnenschutz sind weitere Annehmlichkeiten. Das Objekt verfügt über 6 Garagenplätze, die zusätzlich zum Preis von 45.000 pro Platz erworben werden können.

Beim Betreten der Wohnung gelangen Sie in einen ca. 7 m² großen Vorraum, welcher alle Räumlichkeiten miteinander verbindet. Dieser führt Sie gegenüber der Eingangstüre in das ca. 13 m² große Schlafzimmer. Direkt neben diesem befindet sich ein ca. 8 m² großer Raum, welcher sich optimal als Arbeitszimmer anbietet. Weiter über den Flur erreichen Sie die lichtdurchflutete Wohnküche. Hier haben Sie auf ca. 21 m² genügend Platz einen separaten Wohn- und Essbereich zu gestalten. Vom Wohnzimmer aus haben Sie Zugang auf die Loggia und den Balkon, der zum Entspannen an der frischen Luft einlädt. Ein modern ausgestattetes Bad mit begehbarer Dusche, Waschtisch, WC und Waschmaschinenanschluss sowie ein Gäste-WC können ebenfalls über den Flur erreicht werden.

Das Objekt kann auch als Anlageobjekt gekauft werden, dabei beläuft sich der Kaufpreis auf € 441.000,00.

Die Lage der Immobilie kann als Gut bewertet werden. Innerhalb von wenigen Gehminuten erreichen Sie die nahegelegene Bushaltestelle der Buslinie 92A die an den öffentlichen Verkehr angebunden.  In direkter Umgebung befinden sich mehrere Geschäfte für den täglichen Bedarf. In nur wenigen Gehminuten erreichen Sie das Obere Mühlwasser, ein wahres Erholungsparadies. Die Uferpromenade entlang des Mühlwassers bietet eine idyllische Umgebung, perfekt für entspannte Spaziergänge und die Möglichkeit, die Natur in vollen Zügen zu genießen. Die klaren Wasserläufe und grünen Ufer schaffen eine friedliche Atmosphäre, die ideal ist, um dem Alltagsstress zu entkommen.

Gerne lassen wir Ihnen bei ernsthaftem Interesse - vor Kaufanbotlegung - weitere vertraulichen Dokumente zu dieser Liegenschaft zukommen, welche nicht veröffentlicht werden dürfen.

Überzeugen Sie sich selbst von diesem überaus attraktiven Objekt. Für Besichtigungen und nähere Informationen stehen wir Ihnen gerne zur Verfügung!

Herr Aleksandar Mihajlovic, MSc
national - Tel: 0660 652 5500
international - Tel: +43 660 652 5500
e-mail:

Wir weisen darauf hin, dass zwischen dem Vermittler und dem zu vermittelnden Dritten ein familiäres oder wirtschaftliches Naheverhältnis besteht.

Der Vermittler ist als Doppelmakler tätig.

 

 


Infrastruktur / Entfernungen

Gesundheit
Arzt <500m
Apotheke <1.500m
Klinik <1.500m
Krankenhaus <1.500m

Kinder & Schulen
Schule <1.000m
Kindergarten <1.000m
Universität <3.000m
Höhere Schule <3.000m

Nahversorgung
Supermarkt <500m
Bäckerei <1.000m
Einkaufszentrum <4.000m

Sonstige
Geldautomat <1.000m
Bank <1.000m
Post <1.500m
Polizei <1.000m

Verkehr
Bus <500m
U-Bahn <1.500m
Straßenbahn <1.000m
Bahnhof <1.500m
Autobahnanschluss <2.500m

Angaben Entfernung Luftlinie / Quelle: OpenStreetMap

Provision: 3% des Kaufpreises zzgl. 20% USt.


Alle Details anzeigen

KONTAKT






 

Lasse dich kostenlos vom Anbieter dieser Immobilie zurückrufen.







 


 
IM Lifestyle Properties GmbH
Aleksandar Mihajlovic
Telefonnummer anzeigen Telefon Allgemein: +4315121484
Handy Bearbeiter: +436606525500
 
Bitte dem Makler die FindMyHome.at - ID bekanntgeben: 5552422

Bewertungen dieses Anbieters
Qualitätsmakler
Qualitätsmakler:
2019, 2023,
Netiquette
Freundlichkeit

BEWERTUNGEN DIESES ANBIETERS

 
Qualit�tsmakler
Qualitätsmakler
2019, 22/23
Freundlichkeit
BESONDERS
FREUNDLICH
Netiquette
FINDMYHOME
NETIQUETTE
Auch du kannst bewerten! 7 Tage nach deiner Anfrage erhältst du dafür von uns ein Bewertungsmail.
Alle Infos zu unseren Auszeichnungen und dem FINDMYHOME.AT Qualitätsprogramm findest du hier: Übersicht anzeigen

FINANZIERUNG
?>

Du willst wissen, wie viel dein Umzug kosten wird?

Mach gleich den kostenlosen Preisvergleich und schau, welche seriösen Anbieter in deiner Region günstig deinen Umzug organisieren


ZUM UMZUGS-VERGLEICH
-->

MYHOME BLOG
SuchAgentin auf FindMyHome.at
Unterschiedlichen Rechtsthemen, köstliche Rezepte, neueste Design-Highlights, sowie aktuelle Technik-Tools für Ihr Eigenheim.


FINDMYHOME.AT SUCHAGENTIN
SuchAgentin auf FindMyHome.at
Hallo, soll ich dir ähnliche Immobilien kostenfrei per E-Mail schicken?


ÄHNLICHE IMMOBILIEN
Aehnliche Immobilie - Vorschaubild 1

Ihre moderne neue Traumwohnung in einer naturnahen Lage! Ab ... - Objektnr. 5440604

54,09 m² - 2.0 Zimmer
320000 €
PLZ: 1220

Mehr anzeigen

Aehnliche Immobilie - Vorschaubild 2

PROVISIONSFREI - Aspern Flats 103 - Ihr Traum vom Eigenheim ... - Objektnr. 5456852

48,59 m² - 2.0 Zimmer
331500 €
PLZ: 1220

Mehr anzeigen

Aehnliche Immobilie - Vorschaubild 3

Vorsorgewohnung | Stadt. Land. Fluss. | 2 - Zimmer Anlagewoh... - Objektnr. 5305055

70,63 m² - 2 Zimmer
451700 €
PLZ: 1220

Mehr anzeigen

Durch die Nutzung unserer Seite erklären Sie sich mit der Verwendung von Cookies zur Verbesserung Ihres Online-Erlebnisses einverstanden. Detaillierte Informationen zu diesem und weiteren Themen erhalten Sie in unserer Datenschutzerklärung.